土地活用パートナー 長吉建設

06-6799-3238

貸事務所・倉庫・工場・店舗
のことなら長吉建設へ Facebook Instagram 06-6799-3238

menu

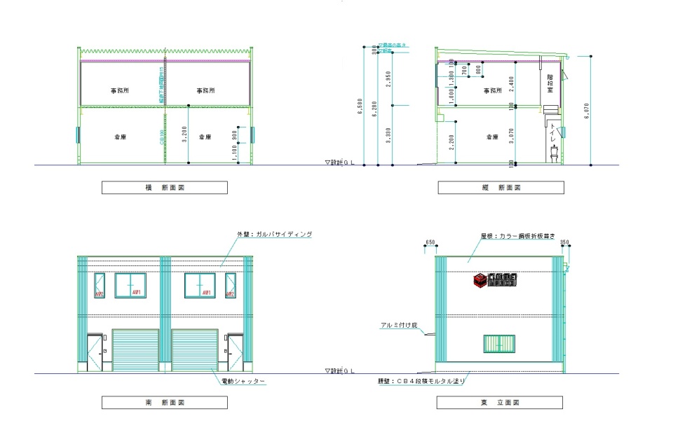
八尾市南太子堂5丁目新築物件南太子堂CUBE SPACE

事務所付倉庫

1F 倉庫

1階倉庫

階段

1F 洗面

2階 事務所

2階 事務所

1F トイレ

1F 倉庫

1階倉庫

階段

1F 洗面

2階 事務所

2階 事務所

1F トイレ

賃料(税込)
154,000円
住所
大阪府八尾市南太子堂5丁目18-1(地番)
建物面積
1F/10.16坪 2F/10.16坪
保証金/解約引
保証金/6か月 解約引/2か月
管理費・共益費
有 水道代 3,000円
その他経費
(仲介手数料)
成約時、手数料として家賃の1カ月分+税が必要です
駐車場
建物前面に駐車スペース有(2台)
交通
JR 久宝寺駅 徒歩20分

物件種目
事務所付倉庫
建物構造
鉄骨造
築年月
2026年9月上旬予定
接道状況
南側幅員・・・7m  
用途地域
第一種住居地域
建物面積・使用部分面積
現況
建築中
引渡時期
2026年9月上旬
取引形態
媒介
建物設備
1F:電動シャッター、トイレ、手洗い 2F:事務所内装、シンク
契約期間
3年
備考

※賃料は税込表記です。

※募集内容に変更が生じる可能性がございます。 ご了承下さい。

※引き渡し日に変更が生じる可能性がござます。

※保証会社  加入要(初回保証料・・・賃料の1か月分、1年の更新料・・・賃料の10%) ※「交通」はグーグルマップの徒歩時間を参照しております。

表示されている地図は周辺環境を示すものであり、実際の物件所在地とは異なる場合がございます。詳細は必ず店舗までお問い合わせください。

この物件へのお問い合わせはこちら