土地活用パートナー 長吉建設

06-6799-3238

貸事務所・倉庫・工場・店舗
のことなら長吉建設へ Facebook Instagram 06-6799-3238

menu

八尾市南木の本8丁目芝田リース建物

工場

賃料(税込)
550,000円
住所
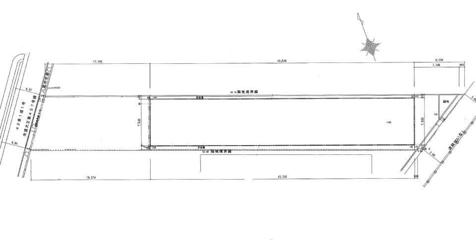
大阪府八尾市南木の本8丁目20番地
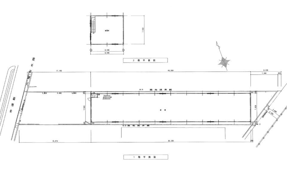
建物面積
1階/100坪  2階/20坪
保証金/解約引
6ヶ月/2ヶ月
管理費・共益費
その他経費
(仲介手数料)
賃料の1ヶ月分発生いたします。
駐車場
建物前面駐車場あり
交通
大阪メトロ 谷町線 八尾南駅徒歩約13分

物件種目
工場
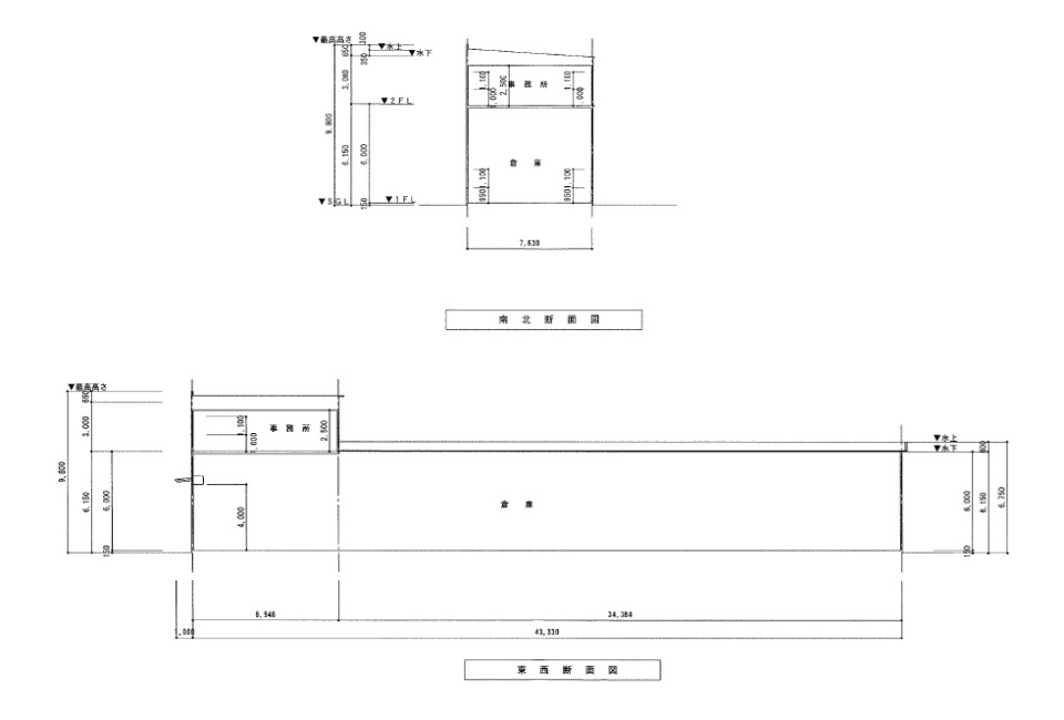
建物構造
鉄骨造
築年月
2007年8月
接道状況
西側道路幅員5m  
用途地域
準工業地域
建物面積・使用部分面積
現況
使用中
引渡時期
2026年7月上旬頃
取引形態
媒介
建物設備
契約期間
3年
備考

保証会社加入必須   初回/賃料の100%  更新料/賃料の10%(年1回)

表示されている地図は周辺環境を示すものであり、実際の物件所在地とは異なる場合がございます。詳細は必ず店舗までお問い合わせください。

この物件へのお問い合わせはこちら