土地活用パートナー 長吉建設

06-6799-3238

貸事務所・倉庫・工場・店舗
のことなら長吉建設へ Facebook Instagram 06-6799-3238

menu

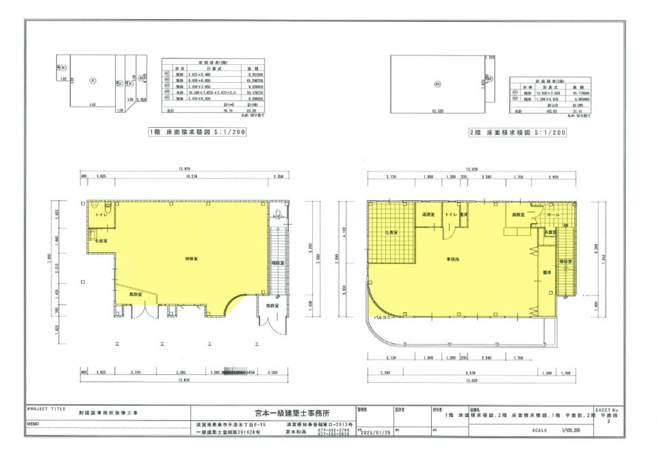
堺市美原区小寺剣建設 貸事務所

事務所付倉庫

賃料(税込)
470,000円
住所
大阪府堺市美原区小寺727
建物面積
1F /23.2坪  2F/ 31.41坪
保証金/解約引
保証金/3か月 解約引/1か月
管理費・共益費
その他経費
(仲介手数料)
賃料の1ヶ月分発生いたします。
駐車場
有り・・・ 8台
交通
南海電鉄高野線  最寄駅「初芝」

物件種目
事務所付倉庫
建物構造
鉄骨造
築年月
2000年8月
接道状況
前面道路 幅員6m  道路間口13.8m
用途地域
第一種住居地域
建物面積・使用部分面積
現況
空き
引渡時期
要相談
取引形態
媒介
建物設備
1F/照明・トイレ・電動シャッター・キッチン・業務用エアコン 2F/照明・トイレ・シンク・天井カセット型空調機・造作収納棚
契約期間
3年
備考

2F バルコニーテラスあり 23.03㎡(約7坪)


1F/2F造作・設備等は残置物とし、現状有姿での引き渡しとする。


電気・ガス:1本回線(1階・2階共用)

表示されている地図は周辺環境を示すものであり、実際の物件所在地とは異なる場合がございます。詳細は必ず店舗までお問い合わせください。

この物件へのお問い合わせはこちら