土地活用パートナー 長吉建設

06-6799-3238

貸事務所・倉庫・工場・店舗
のことなら長吉建設へ Facebook Instagram 06-6799-3238

menu

堺市西区北条町新築物件北条町CUBE SPACE

事務所付倉庫

外観

1F 倉庫

2F 事務所

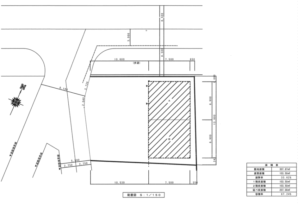
配置図

平面図

立面図

外観

1F 倉庫

2F 事務所

配置図

平面図

立面図

賃料(税込)
286,000円
住所
大阪府堺市西区北条町1丁187-1(地番)
建物面積
1F/15.65坪  2F/15.65坪
保証金/解約引
6ヶ月/2ヶ月
管理費・共益費
無し
その他経費
(仲介手数料)
賃料の1ヶ月分発生いたします。
駐車場
建物前面駐車場あり
交通
阪和線 上野芝駅 徒歩約17分

物件種目
事務所付倉庫
建物構造
鉄骨造
築年月
2026年4月
接道状況
西側道路幅員8.1m   間口13.8m
用途地域
近隣商業地域
建物面積・使用部分面積
現況
建築中
引渡時期
2026年4月中旬頃予定
取引形態
媒介
建物設備
1F/照明、コンセント、電動シャッター、トイレ 2F/ミニキッチン、事務所内装
契約期間
3年
備考

※賃料は税込表記です。 ※保証会社  加入要(初回保証料・・・賃料の1か月分、1年の更新料・・・賃料の10%)

※「交通」はグーグルマップの徒歩時間を参照しております。 ※募集内容に変更が生じる可能性がございます。 ご了承下さい。

表示されている地図は周辺環境を示すものであり、実際の物件所在地とは異なる場合がございます。詳細は必ず店舗までお問い合わせください。

この物件へのお問い合わせはこちら