土地活用パートナー 長吉建設

06-6799-3238

貸事務所・倉庫・工場・店舗
のことなら長吉建設へ Facebook Instagram 06-6799-3238

menu

大阪市平野区出戸7丁目新築物件MURANO CUBE SPACE

事務所付倉庫

※写真は施工例です

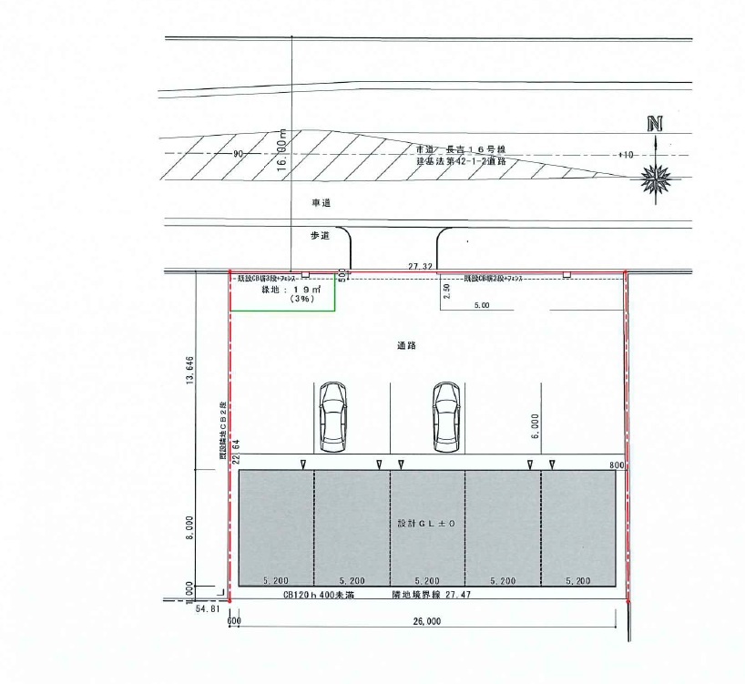
敷地図面

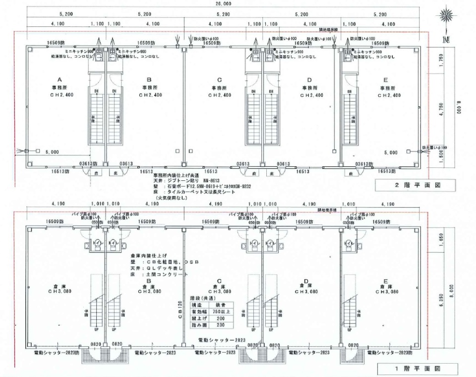
平面図

立面図

※写真は施工例です。詳しくは資料をご覧ください。

※写真は施工例です。詳しくは資料をご覧ください。

※写真は施工例です。詳しくは資料をご覧ください。

※写真は施工例です。詳しくは資料をご覧ください。

※写真は施工例です。詳しくは資料をご覧ください。

※写真は施工例です。詳しくは資料をご覧ください。

※写真は施工例です。詳しくは資料をご覧ください。

※写真は施工例です

敷地図面

平面図

立面図

※写真は施工例です。詳しくは資料をご覧ください。

※写真は施工例です。詳しくは資料をご覧ください。

※写真は施工例です。詳しくは資料をご覧ください。

※写真は施工例です。詳しくは資料をご覧ください。

※写真は施工例です。詳しくは資料をご覧ください。

※写真は施工例です。詳しくは資料をご覧ください。

※写真は施工例です。詳しくは資料をご覧ください。

賃料(税込)
180,400円
住所
大阪府大阪市平野区出戸7丁目2260(番地)
建物面積
1F/12.58坪 2F/12.58坪
保証金/解約引
保証金/6か月 解約引/2か月
管理費・共益費
無し
その他経費
(仲介手数料)
成約時、手数料として家賃の1カ月分+税が必要です
駐車場
建物前面に駐車スペース有(2台)
交通
大阪メトロ 谷町線 長原駅 徒歩19分

物件種目
事務所付倉庫
建物構造
鉄骨造
築年月
2026年3月中旬予定
接道状況
北側幅員・・・16m  
用途地域
第2種中高層住居専用地域
建物面積・使用部分面積
現況
建築中
引渡時期
2026年4月上旬
取引形態
媒介
建物設備
1F:電動シャッター、トイレ、手洗い 2F:事務所内装、シンク
契約期間
3年
備考

※賃料は税込表記です。

※募集内容に変更が生じる可能性がございます。 ご了承下さい。

※引き渡し日に変更が生じる可能性がござます。

※保証会社  加入要(初回保証料・・・賃料の1か月分、1年の更新料・・・賃料の10%) ※「交通」はグーグルマップの徒歩時間を参照しております。

表示されている地図は周辺環境を示すものであり、実際の物件所在地とは異なる場合がございます。詳細は必ず店舗までお問い合わせください。

この物件へのお問い合わせはこちら