土地活用パートナー 長吉建設

06-6799-3238

貸事務所・倉庫・工場・店舗
のことなら長吉建設へ Facebook Instagram 06-6799-3238

menu

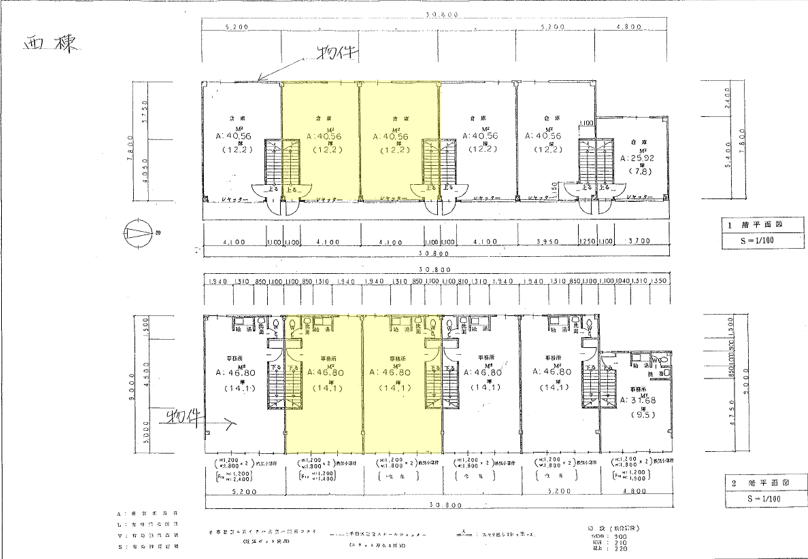
松原市別所松川コンパクトオフィス 

事務所付倉庫

賃料(税込)
165,000円
住所
大阪府松原市別所2丁目2-16
建物面積
1階/12.2坪 2階/14.1坪
保証金/解約引
保証金/6か月 解約引/2か月 
管理費・共益費
その他経費
(仲介手数料)
成約時、賃料の1ヶ月分必要です。
駐車場
有  建物前面に駐車場スペース有
交通
松原IC入口 1分

物件種目
事務所付倉庫
建物構造
鉄骨造
築年月
1997年1月
接道状況
北側道路幅員 11m(歩道含まず) 道路間口 5m(共有通路)
用途地域
第二種住居地域
建物面積・使用部分面積
現況
使用中
引渡時期
2026年3月上旬頃
取引形態
媒介
建物設備
1F インターホン、ポスト ※ 事務所内装、ミニキッチン、電気温水器、トイレ
契約期間
3年
備考

※賃料は税込表記です。

]※保証会社  加入要(初回保証料・・・賃料の1か月分、1年の更新料・・・賃料の10%) ※「交通」はグーグルマップの徒歩時間を参照しております。

※募集内容に変更が生じる可能性がございます。 ご了承下さい。

表示されている地図は周辺環境を示すものであり、実際の物件所在地とは異なる場合がございます。詳細は必ず店舗までお問い合わせください。

この物件へのお問い合わせはこちら